-
Isolador ferroviário
-
Tubos de fibra de vidro epoxi
-
Ferramentas de linha viva
-
Produtos GRP de catenária
-
Isolador de linha aérea
-
Encaixes do isolador
-
Rodas de fibra de vidro epoxi
-
Isolamento de borracha de silicone
-
fusível cortado
-
Máquina de isolamento
-
Escavadeiras isoladas
-
Perfil de pultração de fibra de vidro
-
FRP moldou produtos
-
Cynthia ZaneFácil de comunicar e muito profissional. -
Gus VerduzcoA qualidade do produto é boa, e a equipa pós-venda é muito responsável. -
Edson Polli JuniorExcelente brilho, agora a ver função -
Edson Polli JuniorExcelente brilho, agora a ver função
3.2 M-15.2 M andaimes totalmente isolados para trabalho em linha
| Features | Easy to Installation | Height | 3.2 M-15.2 M |
|---|---|---|---|
| Material | Fiberglass and epoxy resin | Color | Yellow, Orange,red or Customized |
| OEM | Accepted | Port | Shanghai or other port in China |
| Brand | TID POWER | Load Capacity | 300kgs |
| Destacar | 15.2M Escavadeiros isolados,Inspecção em linha direta de andaimes isolados,15.2M Escavadeiras de plataformas isoladas |
||
3.2 M-15.2 M Escavadeiras totalmente isoladas
Produto
A característica de3.2 M-15.2 M Escavadeiras totalmente isoladas
1A estrutura global adota um projeto de combinação modular, que é simples e rápido de construir e desmontar;
2. Os componentes são padrão e podem ser desmontados e montados sem o uso de ferramentas, simples e conveniente;
3A combinação é diversa e pode adaptar-se a qualquer ambiente do local, e pode ser personalizada de acordo com os requisitos do cliente;
4O material é feito de tubo de fibra de vidro leve e de alta resistência, que é livre de manutenção durante 15 anos;
5O produto cumpre a norma GB17620-1998 "Condições técnicas gerais para escadas duras isoladas para trabalho em tempo real" e passou os testes dos departamentos nacionais competentes.A resposta do utilizador ao uso é boa.
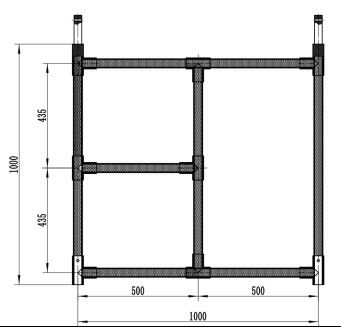
A estrutura principal do andaime totalmente isolado(plataforma)é um alto-Tubos isolantes de resistência fabricados em fibra de vidro e resina epóxi(PE)).É construído por uma estrutura de escada,com um comprimento de 10 mm ou mais, mas não superior a 50 mm,,e uma haste de suporte mais uma placa de plataforma isolante.O andaime isolante(plataforma)é rápido de construir,fácil de desmontar e montar,sem qualquer ferramenta de instalação,e conveniente de usar.Tem alta resistência mecânica,Excelente desempenho de isolamento,alta flexibilidade,segurança e estabilidade,Desmontagem e montagem rápidas,não-condutor,anti oxidação,resistência à corrosão,não-Escintilha,etc..É adequado para uma variedade de canteiros de obras e de alta-Operações ao vivo em altitude.Compensa a incapacidade dos camiões de baldes isolados para entrar no local de construção.
3.2 M-15.2 M Escavadeiras totalmente isoladas
Escadaria reta Tamanho do andaime totalmente isolado
|
- Não, não. |
Código dos produtos |
L (M) |
W(M) |
Altura do pé M |
Altura total M |
Capacidade de carga Quilos |
|
1 |
221022 |
1.8 |
0.85 |
2.2 |
3.2 |
200 |
|
2 |
221027 |
1.8 |
0.85 |
2.7 |
3.7 |
200 |
|
3 |
221032 |
1.8 |
0.85 |
3.2 |
4.2 |
200 |
|
4 |
221037 |
1.8 |
0.85 |
3.7 |
4.7 |
200 |
|
5 |
221042 |
1.8 |
0.85 |
4.2 |
5.2 |
200 |
|
6 |
221047 |
1.8 |
0.85 |
4.7 |
5.7 |
200 |
|
7 |
221052 |
1.8 |
0.85 |
5.2 |
6.2 |
200 |
|
8 |
221057 |
1.8 |
0.85 |
5.7 |
6.7 |
200 |
|
9 |
221062 |
1.8 |
0.85 |
6.2 |
7.2 |
200 |
|
10 |
221067 |
1.8 |
0.85 |
6.7 |
7.7 |
200 |
|
11 |
221072 |
1.8 |
0.85 |
7.2 |
8.2 |
200 |
|
12 |
221077 |
1.8 |
0.85 |
7.7 |
8.7 |
200 |
|
13 |
221082 |
1.8 |
0.85 |
8.2 |
9.2 |
200 |
|
14 |
221087 |
1.8 |
0.85 |
8.7 |
9.7 |
200 |
|
15 |
221092 |
1.8 |
0.85 |
9.2 |
10.2 |
200 |
|
18 |
222022 |
2.5 |
0.85 |
2.2 |
3.2 |
200 |
|
19 |
222027 |
2.5 |
0.85 |
2.7 |
3.7 |
200 |
|
20 |
222032 |
2.5 |
0.85 |
3.2 |
4.2 |
200 |
|
22 |
222037 |
2.5 |
0.85 |
3.7 |
4.7 |
200 |
|
23 |
222042 |
2.5 |
0.85 |
4.2 |
5.2 |
200 |
|
23 |
222047 |
2.5 |
0.85 |
4.7 |
5.7 |
200 |
|
24 |
222052 |
2.5 |
0.85 |
5.2 |
6.2 |
200 |
|
25 |
222057 |
2.5 |
0.85 |
5.7 |
6.7 |
200 |
|
26 |
222062 |
2.5 |
0.85 |
6.2 |
7.2 |
200 |
|
27 |
222067 |
2.5 |
0.85 |
6.7 |
7.7 |
200 |
|
28 |
222072 |
2.5 |
0.85 |
7.2 |
8.2 |
200 |
|
29 |
222077 |
2.5 |
0.85 |
7.7 |
8.7 |
200 |
|
30 |
222082 |
2.5 |
0.85 |
8.2 |
9.2 |
200 |
|
31 |
222087 |
2.5 |
0.85 |
8.7 |
9.7 |
200 |
|
32 |
222092 |
2.5 |
0.85 |
9.2 |
10.2 |
200 |
|
33 |
222097 |
2.5 |
0.85 |
9.7 |
10.7 |
200 |
|
34 |
222102 |
2.5 |
0.85 |
10.2 |
11.2 |
200 |
Escadaria reta Tamanho do andaime totalmente isolado
|
- Não, não. |
Código dos produtos |
L (M) |
W(M) |
Altura do pé M |
Altura total M |
Capacidade de carga Quilos |
|
1 |
223027 |
1.8 |
1.45 |
2.7 |
3.7 |
200 |
|
2 |
223032 |
1.8 |
1.45 |
3.2 |
4.2 |
200 |
|
3 |
223037 |
1.8 |
1.45 |
3.7 |
4.7 |
200 |
|
4 |
223042 |
1.8 |
1.45 |
4.2 |
5.2 |
200 |
|
5 |
223047 |
1.8 |
1.45 |
4.7 |
5.7 |
200 |
|
6 |
223052 |
1.8 |
1.45 |
5.2 |
6.2 |
200 |
|
7 |
223057 |
1.8 |
1.45 |
5.7 |
6.7 |
200 |
|
8 |
223062 |
1.8 |
1.45 |
6.2 |
7.2 |
200 |
|
9 |
223067 |
1.8 |
1.45 |
6.7 |
7.7 |
200 |
|
10 |
223072 |
1.8 |
1.45 |
7.2 |
8.2 |
200 |
|
11 |
223077 |
1.8 |
1.45 |
7.7 |
8.7 |
200 |
|
12 |
223082 |
1.8 |
1.45 |
8.2 |
9.2 |
200 |
|
13 |
223087 |
1.8 |
1.45 |
8.7 |
9.7 |
200 |
|
14 |
223092 |
1.8 |
1.45 |
9.2 |
10.2 |
200 |
|
15 |
223097 |
1.8 |
1.45 |
9.7 |
10.7 |
200 |
|
16 |
223102 |
1.8 |
1.45 |
10.2 |
11.2 |
200 |
|
17 |
223107 |
1.8 |
1.45 |
10.7 |
11.7 |
200 |
|
18 |
223112 |
1.8 |
1.45 |
11.2 |
12.2 |
200 |
|
19 |
223117 |
1.8 |
1.45 |
11.7 |
12.7 |
200 |
|
20 |
224027 |
2.5 |
1.45 |
2.7 |
3.7 |
200 |
|
22 |
224032 |
2.5 |
1.45 |
3.2 |
4.2 |
200 |
|
23 |
224037 |
2.5 |
1.45 |
3.7 |
4.7 |
200 |
|
23 |
224042 |
2.5 |
1.45 |
4.2 |
5.2 |
200 |
|
24 |
224047 |
2.5 |
1.45 |
4.7 |
5.7 |
200 |
|
25 |
224052 |
2.5 |
1.45 |
5.2 |
6.2 |
200 |
|
26 |
224057 |
2.5 |
1.45 |
5.7 |
6.7 |
200 |
|
27 |
224062 |
2.5 |
1.45 |
6.2 |
7.2 |
200 |
|
28 |
224067 |
2.5 |
1.45 |
6.7 |
7.7 |
200 |
|
29 |
224072 |
2.5 |
1.45 |
7.2 |
8.2 |
200 |
|
30 |
224077 |
2.5 |
1.45 |
7.7 |
8.7 |
200 |
|
31 |
224082 |
2.5 |
1.45 |
8.2 |
9.2 |
200 |
|
32 |
224087 |
2.5 |
1.45 |
8.7 |
9.7 |
200 |
|
33 |
224092 |
2.5 |
1.45 |
9.2 |
10.2 |
200 |
|
34 |
224097 |
2.5 |
1.45 |
9.7 |
10.7 |
200 |
|
35 |
224102 |
2.5 |
1.45 |
10.2 |
11.2 |
200 |
|
36 |
224107 |
2.5 |
1.45 |
10.7 |
11.7 |
200 |
|
37 |
224112 |
2.5 |
1.45 |
11.2 |
12.2 |
200 |
|
38 |
224117 |
2.5 |
1.45 |
11.7 |
12.7 |
200 |
Escala de escalada cruzada Escavadeira totalmente isolada
|
- Não, não. |
Produtos |
L (M) |
W(M) |
Altura do pé |
Altura total |
Carga |
|
1 |
225030 |
2.0 |
0.85 |
3 |
4.2 |
200 |
|
2 |
225040 |
2.0 |
0.85 |
4 |
5.2 |
200 |
|
3 |
225050 |
2.0 |
0.85 |
5 |
6.2 |
200 |
|
4 |
225060 |
2.0 |
0.85 |
6 |
7.2 |
200 |
|
5 |
225070 |
2.0 |
0.85 |
7 |
8.2 |
200 |
|
6 |
225080 |
2.0 |
0.85 |
8 |
9.2 |
200 |
|
7 |
226030 |
2.0 |
1.40 |
3 |
4.2 |
200 |
|
8 |
226040 |
2.0 |
1.40 |
4 |
5.2 |
200 |
|
9 |
226050 |
2.0 |
1.40 |
5 |
6.2 |
200 |
|
10 |
226060 |
2.0 |
1.40 |
6 |
7.2 |
200 |
|
11 |
226070 |
2.0 |
1.40 |
7 |
8.2 |
200 |
|
12 |
226080 |
2.0 |
1.40 |
8 |
9.2 |
200 |
|
13 |
226090 |
2.0 |
1.40 |
9 |
10.2 |
200 |
|
14 |
226100 |
2.0 |
1.40 |
10 |
11.2 |
200 |
|
15 |
226110 |
2.0 |
1.40 |
11 |
12.2 |
200 |
|
18 |
226120 |
2.0 |
1.40 |
12 |
13.2 |
200 |
|
19 |
226130 |
2.0 |
1.40 |
13 |
14.2 |
200 |
|
20 |
226140 |
2.0 |
1.40 |
14 |
15.2 |
200 |
![]()
![]()
![]()
Perguntas frequentes:
1É um fabricante ou um comerciante?
* Somos o fabricante, 15 anos de experiência na produção;
* A fábrica passou a certificação ROSH, SGS;
* Norma: Norma CEI;
* Dispõe de controlo de qualidade próprio.
2Tem alguma experiência em exportação?
* Mais de 10 anos de experiência profissional na exportação.
* Os produtos são exportados para a Indonésia, Grã-Bretanha, Rússia, Ucrânia, Qatar, Roménia, Emirados Árabes Unidos, Egito, Estados Unidos, Costa Rica, Brasil e outros países.
3Como escolher os produtos?
* Produtos normalizados: selecione o código normalizado de acordo com os documentos de referência acima;
* Produtos personalizados: por favor, diga-nos
** Requisitos especiais de material;
Escolha-nos, nós lhe forneceremos uma gama completa de serviços técnicos!
Damos-lhe as boas-vindas para se juntar a nós!
Estamos ansiosos para manter a cooperação permanente com você!


